返回首页

Studycadcam-3D   1-10

1

2

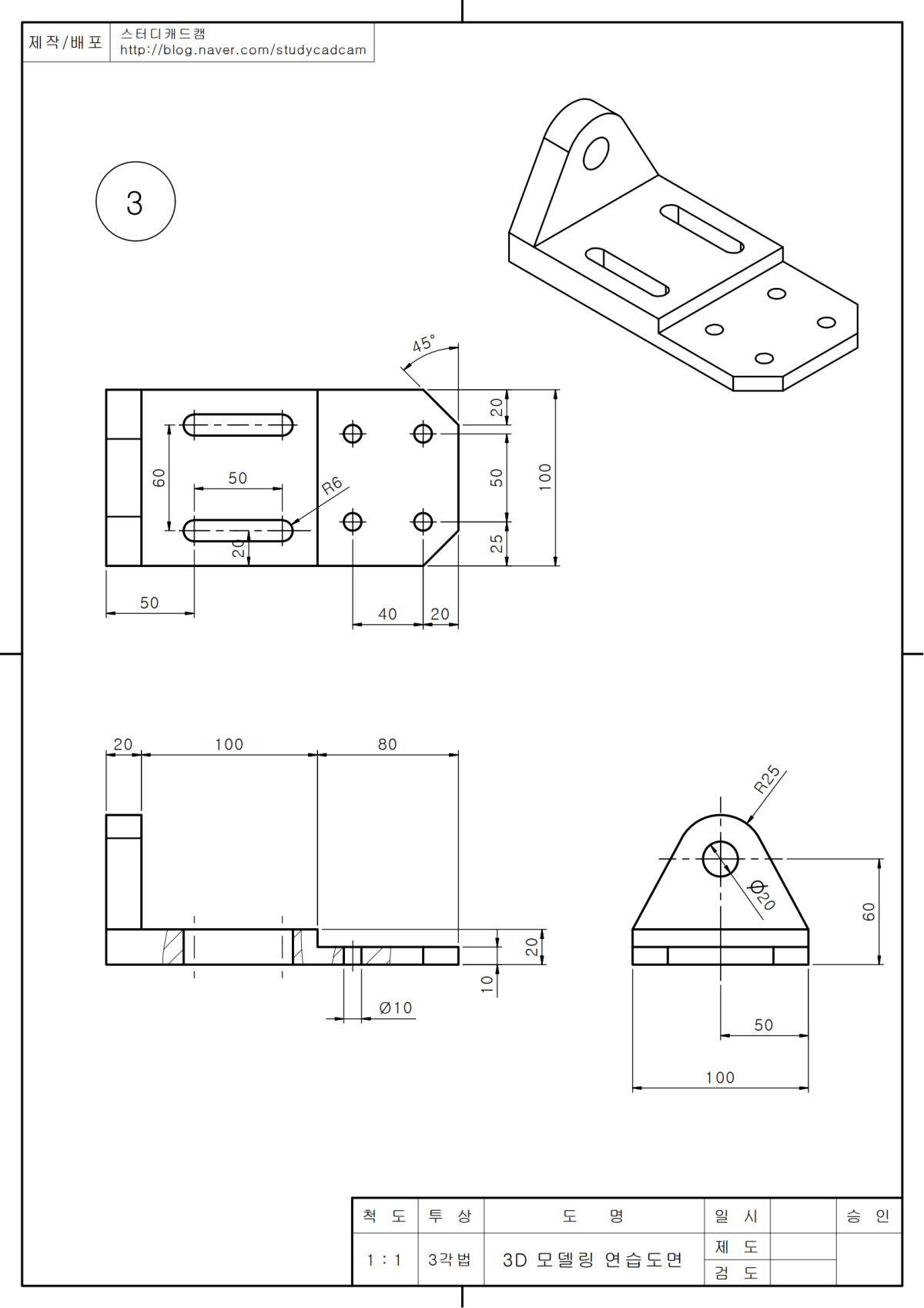
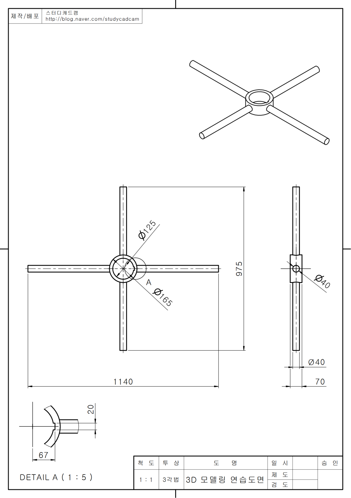
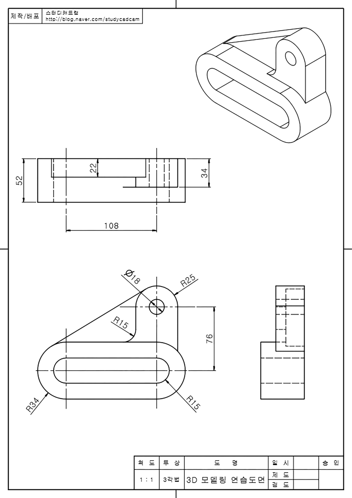
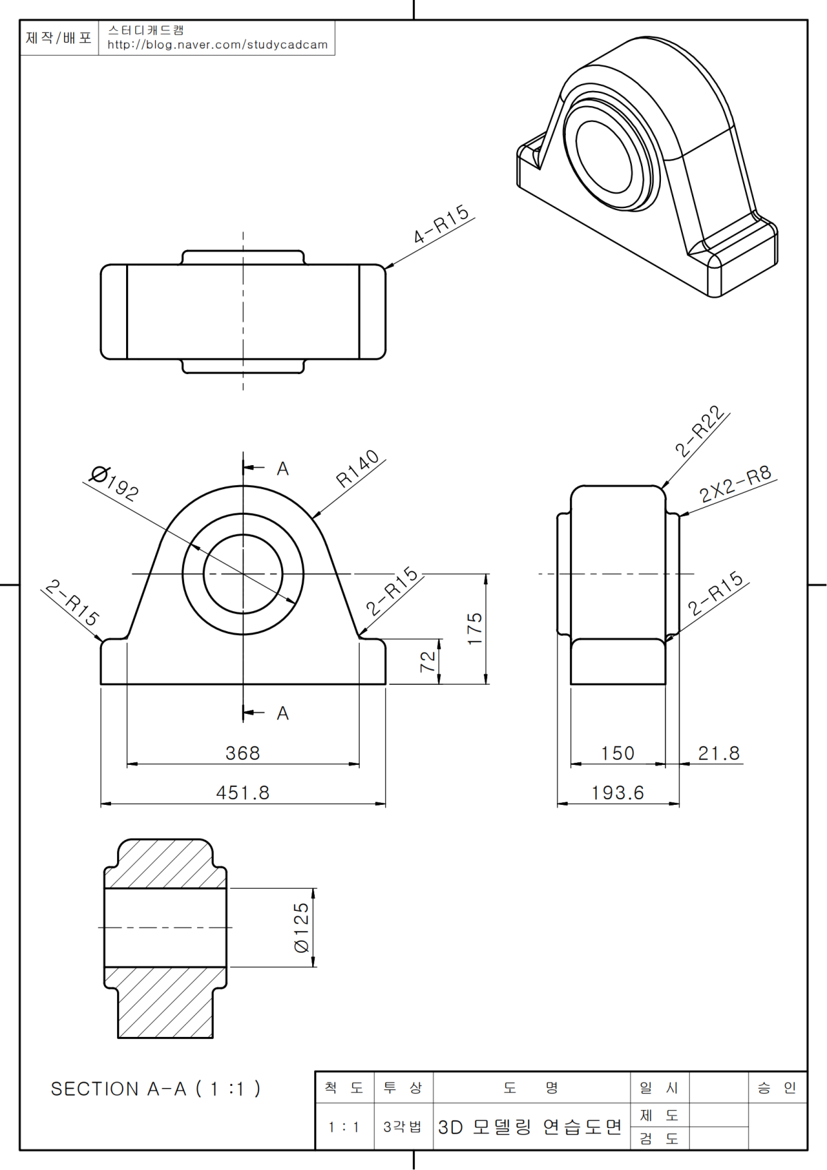
3

4

5

6

7

8

9

10